关于福清市实验小学清盛校区的批前公示
时间:2026年03月30日15:55
浏览:551次
来源:福清市自然资源和规划局
实验小学清盛校区的批前公示
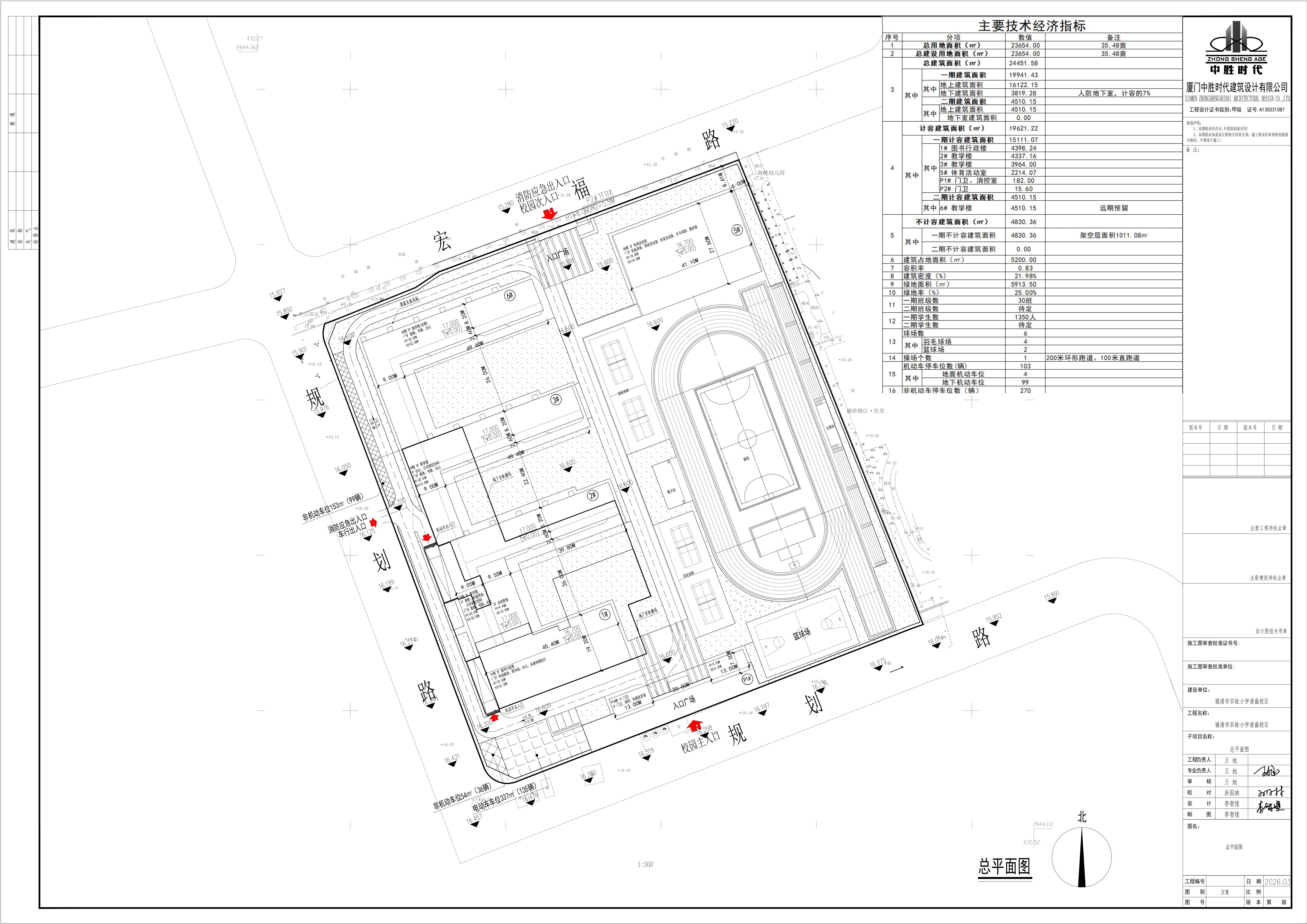
福清市实验小学清盛校区位于福清市宏路街道。该项目总平面规划及建筑设计方案由厦门中胜时代建筑设计有限公司设计。现建设单位向我局申请审核项目建筑设计方案(含总平面图、管综图)。
依据《自然资源部关于加强和规范规划实施监督管理工作的通知》(自然资发〔2023〕237号)等规定,现将该项目的总平面图规划方案进行批前公示,以征求相关利害关系人的意见。公示时间为2026年3月30日至2026年4月9日。公示地点:福清市政务服务中心公告宣传栏、项目现场、福清市自然资源和规划局网站(福清智慧城市规划网)。
利害关系人对此有异议的,应当于公示之日起10个日历日内进行书面的陈述、申辩或提出听证申请,并向我局提交相应证明材料。逾期没有提交(出)材料申请,视为放弃陈述、申辩和听证的权利。
我局建筑景观科负责接收,联系电话:0591-85301092;地址:福清市行政服务中心602室。
附件:福清市实验小学清盛校区总平面图
- 1 -
扫码关注
玉融规划微信公众号
玉融规划微信公众号
扫一扫
在手机上查看当前页面
在手机上查看当前页面
