关于福清市富景房地产有限公司富景花园26#地块建筑方案(含总平面图)变更的公示
时间:2025年09月30日10:17
浏览:510次
来源:福清市自然资源和规划局
富景房地产有限公司富景花园26#地块
建筑方案(含总平面图)变更的公示
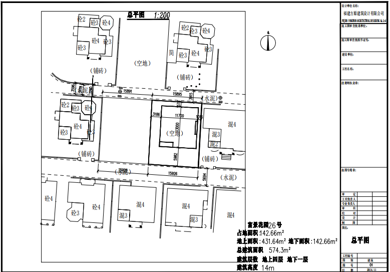
福清市富景房地产有限公司开发的富景花园项目,土地位于龙山街道,其中C型独立式住宅,建设工程规划许可证2007年12月4日审批通过,编号:2007-423JA,建筑面积432㎡,层数四层。现富景房地产公司提出申请:在不改变原审批建设规模情况下,变更富景花园26#地块建筑方案(含总平面图)。
根据《中华人民共和国行政许可法》、《中华人民共和国城乡规划法》、《福建省实施<中华人民共和国城乡规划法>办法》等相关规定,为了便于利害人知悉该地块建筑方案(含总平面图)调整有关情况,广泛听取利害关系人的意见,现我局将拟调整的建筑方案(含总平面图)进行公示,公示地点为福清市人民政府网站、福清市自然资源和规划局公示栏、项目现场。利害关系人对此有异议的,应当于公示之日起7个工作日内进行书面的陈述、申辩或提出听证申请,并向我局提交相应证明材料。逾期没有提交(出)材料申请,视为放弃陈述、申辩和听证的权利。
我局建筑景观科负责接收,联系电话:0591-85301092;地址:福清市行政服务中心602室。
附图:富景花园21#地块拟调整建筑方案(含总平面图)
- 1 -
扫码关注
玉融规划微信公众号
玉融规划微信公众号

扫一扫
在手机上查看当前页面
在手机上查看当前页面